日本MIWA(美和)氣密門鎖在地鐵中用量很大,主要用在站臺與站臺之間的門上,抗風壓和抗正負氣密性都符合GB/T7106-2008第6級的分級指標要求,貨期2個多月,在貨沒到之前,可以安裝這個尺寸開孔,具體可詢問艾若多門控吳生:1356015418
" />
電話:020-39239047









服務熱線:86-020-39522308
手 機:13560154185 吳經理
傳 真:020-39522308-805
Q Q:563485331
微 信:13560154185
Email:evydoo@163.com
網址:m.czfirstlight.com
地址:廣東省廣州市番禺區橋興大道989號中創匯U+創意園2棟321-322室
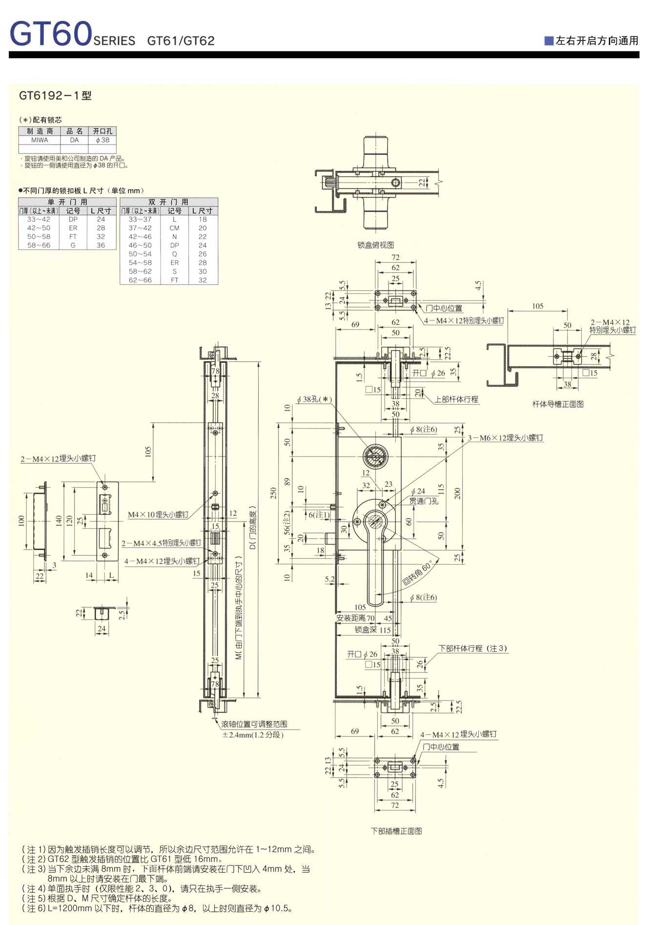
日本進口的MIWA(美和)氣密鎖在地鐵項目氣密門和錄音棚隔音門上用的比較多,它起到隔音和密閉的作用,在國內又叫做隔音門長插銷鎖,跟國內有所不同的是:日本采用訂貨制,時間一般是2個月左右,所以很多門廠因為趕工期,都先用圖紙的尺寸開孔,貨到工廠后,直接安裝就可以了。現以型號為U9GT6192-1為例,我們看看它的安裝尺寸圖吧。(點擊圖片可以查看大圖)如果想了解更多的MIWA(美和)氣密隔音門鎖的供貨周期或者價格,請來電咨詢我們!
版權聲明:艾若多門控版權所有,歡迎分享并注明出處!




